تصاویر؛ یکی از زیباترین خانه های کوچک ژاپنی؛ 80 مترمربع
خانواده پنج نفره مشتری خانهای را درخواست کردند که به اندازه کافی فشرده باشد، اما فضای کافی برای اتاقهای خصوصی داشته باشد و نیازهای اساسی مسکونی را برآورده کند، در عین حال جذاب و منحصر به فرد باشد.
این خانه حقیقتا عجیب در هیرانو اوساکا قرار دارد و توسط معماران فوجیوارا مورو در سال 2022 رونمایی شده است.
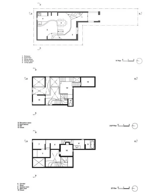
مشتری قطعه زمینی را که به قطعات کوچک برای خانههای آماده تقسیم شده بود، خریداری کرد و پروژه آغاز شد. قطعه خریداریشده، قطعهای به شکل پرچم بود. با این حال، از آنجا که میتوانستیم تا 3 متر از عرض بخش پرچم را استفاده کنیم، فضای کافی برای دستکاری داشتیم.
با استفاده از این 3 متر عرض بخش پرچم، به دنبال طراحیای بودیم که بخشی از خانه در این قسمت گسترش یابد. خانواده پنج نفره مشتری خانهای را درخواست کردند که به اندازه کافی فشرده باشد، اما فضای کافی برای اتاقهای خصوصی داشته باشد و نیازهای اساسی مسکونی را برآورده کند، در عین حال جذاب و منحصر به فرد باشد. این خانه مجموعا 80 متر مربع فضا را به ساکنین خود ارائه می دهد.
ورودی خانه که همان بخش میله یا دسته زمین پرچمی می شود، جذاب ترین قسمت آن است.











منبع: عصر ایران